Anlage zur Dosierung und Mischung von pulverförmigen und flüssigen Komponenten

Die automatisierte Dosier- und Mischanlage ist eine umfassende Lösung für die präzise Herstellung verschiedenster Prozessmischungen, Prozessflüssigkeiten und Halbfabrikate. Das System wurde für Betriebe entwickelt, die eine hohe Reproduzierbarkeit der Produktion, volle Kontrolle über die Rezeptur und Sicherheit in jeder Phase der Dosierung, des Mischens und der Entleerung des fertigen Produkts erwarten.

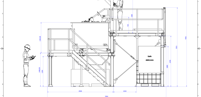
Dosierung von pulverförmigen und flüssigen Komponenten

Die Anlage ermöglicht die automatische Entnahme flüssiger Rohstoffe aus IBC-Containern und externen Lagertanks sowie die kontrollierte Dosierung pulverförmiger Komponenten. Je nach Prozessanforderung können pulverförmige Rohstoffe manuell über Aufgabebehälter zugegeben oder über Big-Bag-Entladestationen zugeführt werden. Auch der Transport von Schüttgütern mittels Scheibenförderern oder Schneckenförderern ist möglich, sodass die Lösung an die Eigenschaften des Mediums, die Einbaubedingungen und die Anforderungen der jeweiligen Technologie angepasst werden kann.

Dosiergenauigkeit und Prozessflexibilität

Das Herzstück der Anlage ist ein System zur präzisen Dosierung, das auf Basis von wägetechnischen Modulen mit Dehnungsmessstreifen arbeiten kann. Je nach Prozessanforderung sind auch volumetrische Dosierung und Mikrodosierung von Zusatzstoffen möglich. Diese Lösung gewährleistet eine hohe Rezepturgenauigkeit, reduziert Rohstoffverluste und trägt dazu bei, eine gleichbleibend hohe Qualität jeder Charge sicherzustellen.

Das System kann gleichzeitig die Herstellung von drei unabhängigen Mischungen übernehmen oder im Modus zur Produktion von Vormischungen arbeiten, die anschließend in den weiteren Prozessschritten verwendet werden. Dadurch bietet die Anlage eine hohe technologische Flexibilität und kann sowohl an die Serienproduktion als auch an komplexere Prozesse mit mehreren Stufen der Komponentenaufbereitung angepasst werden.

Automatisierung und Bedienersicherheit

Ein großer Vorteil dieser Lösung ist das erweiterte Bedienerführungssystem. Das System führt den Bediener Schritt für Schritt durch den Prozess, reduziert das Fehlerrisiko und unterstützt die sichere Abarbeitung der Rezeptur. Durch den Einsatz eines Etikettenscanners kann die Richtigkeit des Rohstoffs bereits vor der Zugabe in den Prozess überprüft werden. So wird verhindert, dass der Bediener versehentlich einen falschen Bestandteil verwendet.

Zusätzliche Sicherheit bieten Aufgabebehälter mit Klappen und automatischer Verriegelung, die sich erst öffnen, nachdem der für den jeweiligen Rezepturschritt vorgesehene Rohstoff korrekt gescannt wurde. Diese Lösung erhöht die Prozesssicherheit, verbessert die Arbeitsorganisation und hilft dabei, die Produktion im Einklang mit den technologischen Vorgaben zu halten.

Kontrolle des Mischprozesses

Der Mischprozess kann für eine festgelegte Zeit oder bis zum Erreichen der gewünschten Produktparameter durchgeführt werden. Je nach Prozessanforderung kann die Anlage außerdem mit einer automatischen Messung von Viskosität, Temperatur und Leitfähigkeit ausgestattet werden, was eine noch präzisere Prozesskontrolle und ein schnelleres Reagieren auf mögliche Abweichungen ermöglicht.

Dieser Ansatz erhöht die Produktionssicherheit, erleichtert die Sicherstellung reproduzierbarer Produkteigenschaften und unterstützt Betriebe, in denen stabile Prozessparameter von entscheidender Bedeutung sind.

Reinigung der Anlage

Aus Sicht des Anwenders ist auch die Möglichkeit einer einfachen und effektiven Reinigung der Anlage ein wichtiger Aspekt. Das System kann mit Reinigungsanschlüssen und automatischen Reinigungsköpfen ausgestattet werden, die die Reinigung von Behältern und Prozesskomponenten erleichtern.

Diese Lösung ist besonders dort wichtig, wo schnelle Rezepturwechsel, hohe Hygienestandards oder die Reduzierung von Stillstandszeiten zwischen einzelnen Produktionschargen entscheidend sind.

Vorteile für den Kunden

Eine Anlage dieser Art ermöglicht es, den gesamten Prozess der Mischungsherstellung zu strukturieren und zu automatisieren — von der Rohstoffaufnahme über die präzise Dosierung bis hin zum kontrollierten Mischen und zur Reinigung des Systems. Für den Kunden bedeutet das höhere Effizienz, bessere Reproduzierbarkeit der Produktion, ein geringeres Risiko von Bedienfehlern sowie die Möglichkeit, den Prozess flexibel an die Anforderungen des Betriebs anzupassen.